Gå til: Plantegninger | Fasade | Kontaktskjema
208 – BUD
MODERNE OG LUFTIG
Bud er en familievennlig bolig med fire soverom og god plass til både hverdagsliv og overnattingsgjester. I tillegg til den åpne stue- og kjøkkenløsningen, får du en kjellerstue som gir ekstra fleksibilitet – perfekt for barna, ungdommen eller som hjemmekino.
Boligen har et vindfang med gode oppbevaringsmuligheter, romslige bad og et praktisk vaskerom med egen utgang. Fra den åpne stue-/kjøkkensonen, kan du ta deg direkte ut på boligens uteområde. Den overbygde uteplassen gir deg muligheten for fine stunder ute i frisk luft, uansett vær.
Bud er et praktisk hjem med et moderne preg, og passer godt for deg som ønsker et hjem med både romslighet og funksjon.
TEKNISK DATA
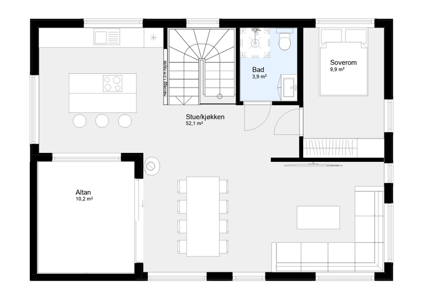
PLANTEGNINGER
ØNSKER DU MER INFORMASJON?
FYLL UT SKJEMAET, SÅ KONTAKTER VI DEG FOR EN HYGGELIG BOLIGPRAT
ARKITEKT
ALT KAN TILPASSES FOR Å IMØTEKOMME DERES ØNSKER OG BEHOV
Fordelene med å bygge et helt nytt hus, er at du kan få det akkurat slik som du vil. Trolig finner du en husmodell i vår katalog som kan passe, men kanskje ønsker du å tilpasse boligen etter egne ønsker og behov.
Vi vil gjøre vårt ytterste for at du skal bli fornøyd, og hjelper deg hele veien fra idé til ferdig bolig. Vi har fagkunnskap og gir gode råd for at du skal få bygget en bolig som passer deg helt perfekt.»








