• Byggmann

233 – LINDÅS

EN DRØM I TRE ETASJER

Lindås er en bolig for storfamilien – og litt til. Med over 565 m² fordelt på tre etasjer, er det rom for alt fra hobbyer og trening, til gjester og hverdagens små og store behov.

Boligen har seks soverom, seks bad, trimrom, stort kontor, tre stuer, en romslig kjøkkenløsning og uteområder som kan nytes uansett hvilken etasje du befinner deg i. Walk-in garderober og praktisk vaskerom sørger for orden i det daglige.

Lindås er den komplette familiedrømmen – for deg som ønsker en bolig med alt.

TEKNISK DATA

Bruksareal: 565,0 m²
Bebygd areal: 334,4 m²
Største lengde: 27,6 m
Største bredde: 15,2 m
Antall soverom: 6-7
Energimerking: Oransje - B

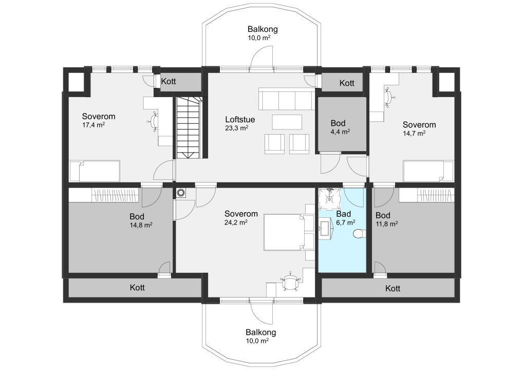
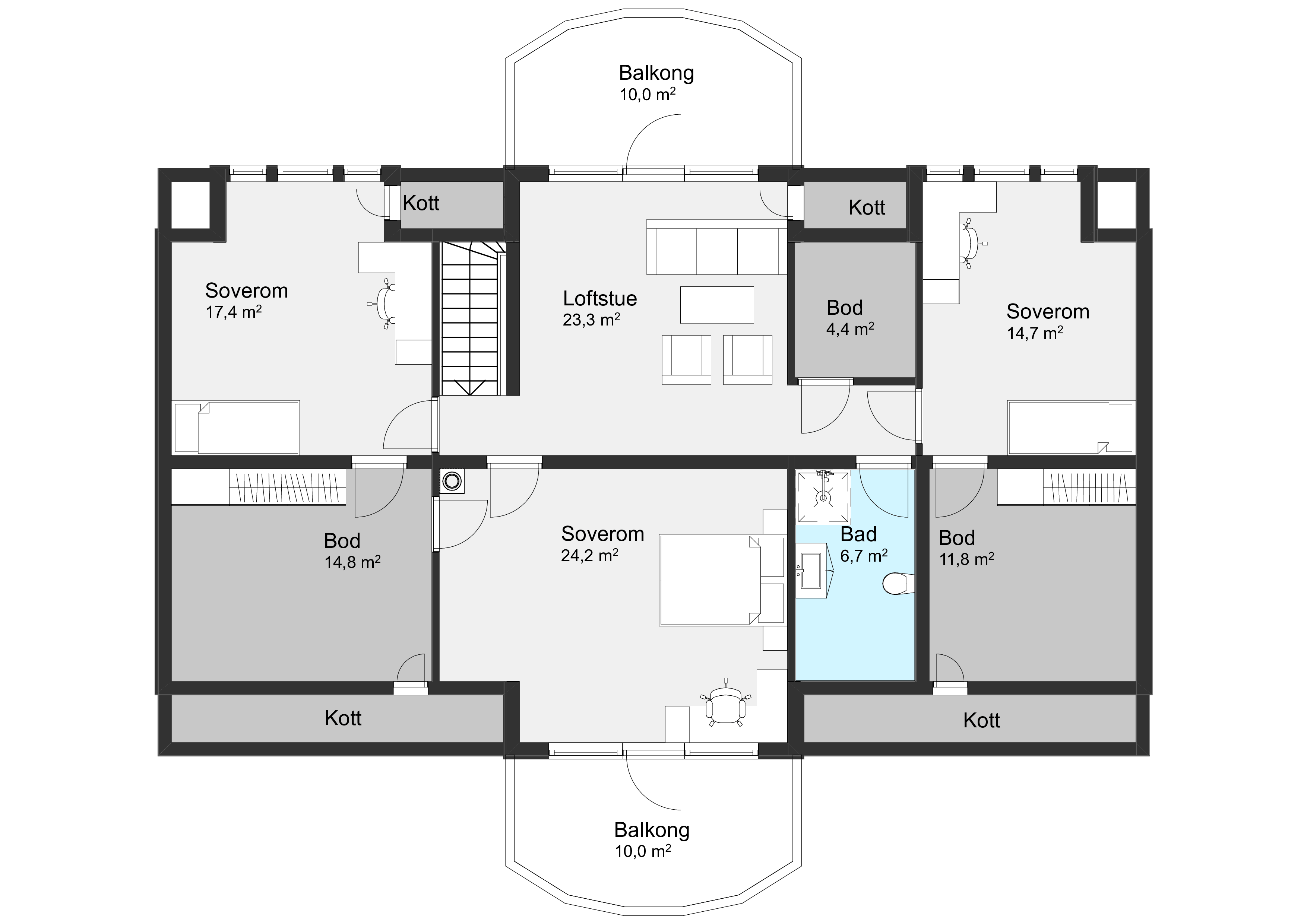
PLANTEGNINGER

1. ETASJE

2. ETASJE

3. ETASJE

[/vc_c
olumn_inner]

FASADE

ØNSKER DU MER INFORMASJON?

FYLL UT SKJEMAET, SÅ KONTAKTER VI DEG FOR EN HYGGELIG BOLIGPRAT

    ARKITEKT

    ALT KAN TILPASSES FOR Å IMØTEKOMME DERES ØNSKER OG BEHOV

    Fordelene med å bygge et helt nytt hus, er at du kan få det akkurat slik som du vil. Trolig finner du en husmodell i vår katalog som kan passe, men kanskje ønsker du å tilpasse boligen etter egne ønsker og behov.

    Vi vil gjøre vårt ytterste for at du skal bli fornøyd, og hjelper deg hele veien fra idé til ferdig bolig. Vi har fagkunnskap og gir gode råd for at du skal få bygget en bolig som passer deg helt perfekt.»

    Trykk her for å lese mer om arkitekttjenester fra Byggmann.