• Byggmann

308 – BRIS

SJARMERENDE HYTTE MED PLASS TIL ALLE
Bris er en praktisk og funksjonell hytte med et enestående allrom fylt av lys og luft.

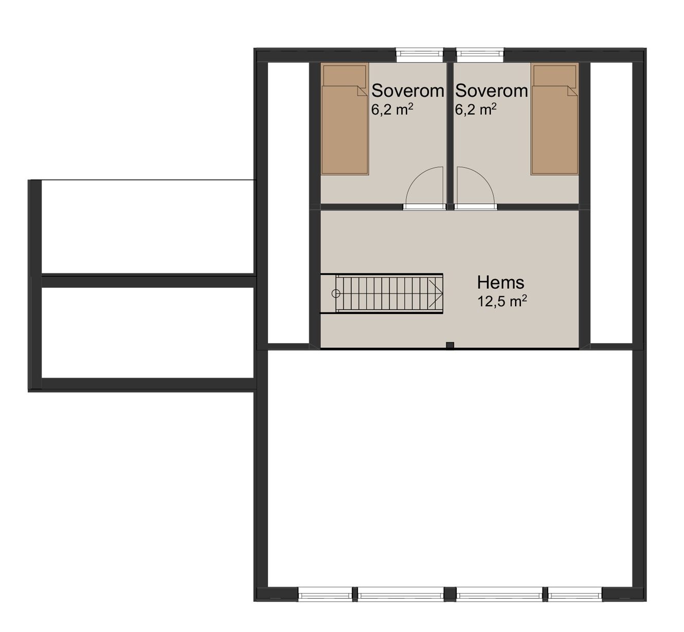
Du kommer inn i hytten via et overbygd inngangsparti som skjermer for vær og vind. Gangen er det første du møter. Her har du tilgang til hyttens andre etasje som inneholder to av hyttens fire soverom, i tillegg til en trivelig hems som kan benyttes som en ekstrastue.

I første etasje finner du en praktisk bod/vaskerom med direkte-tilgang til uteområder. Videre finner du to soverom, et bad, en liten gang med muligheter for garderobeløsning, og allrommet – det naturlige samlingspunktet i hytten.
Stue-/kjøkkenet i hytten Bris har store vindusflater og god takhøyde som slipper inn mye lys. Dette er et fantastisk sted å oppholde seg på, både når det er sol og når regnet pisker på rutene. Her finner du både kjøkken, en spisegruppe og en koselig sofagruppe. En skyvedør i glass gir deg tilgang til en koselig terrasse hvor du kan nyte solen i le for vinden.

Bris er en sjarmerende hytte med et fantastisk stue-/kjøkkenrom hvor du kan nyte
naturen utenfor gjennom store vinduer som går helt fra gulvet i første etasje til taket i andre etasje.
Begregnet for flat tomt.

TEKNISK DATA

Bruksareal: 89,8 m²
Bebygd areal: 92,1 m²
Største lengde: 10,2 m
Største bredde: 11,4 m
Antall soverom: 4

PLANTEGNINGER

1. ETASJE

2. ETASJE

FASADE

ØNSKER DU MER INFORMASJON?

FYLL UT SKJEMAET, SÅ KONTAKTER VI DEG FOR EN HYGGELIG BOLIGPRAT

    ARKITEKT

    ALT KAN TILPASSES FOR Å IMØTEKOMME DERES ØNSKER OG BEHOV

    Fordelene med å bygge et helt nytt hus, er at du kan få det akkurat slik som du vil. Trolig finner du en husmodell i vår katalog som kan passe, men kanskje ønsker du å tilpasse boligen etter egne ønsker og behov.

    Vi vil gjøre vårt ytterste for at du skal bli fornøyd, og hjelper deg hele veien fra idé til ferdig bolig. Vi har fagkunnskap og gir gode råd for at du skal få bygget en bolig som passer deg helt perfekt.»

    Trykk her for å lese mer om arkitekttjenester fra Byggmann.